Favorite
print Print
share Share
For Lease

$1,995.00

 / Monthly

3514 Brittain Blvd, Whiskey Creek, BC V9K 1W2

Remarks

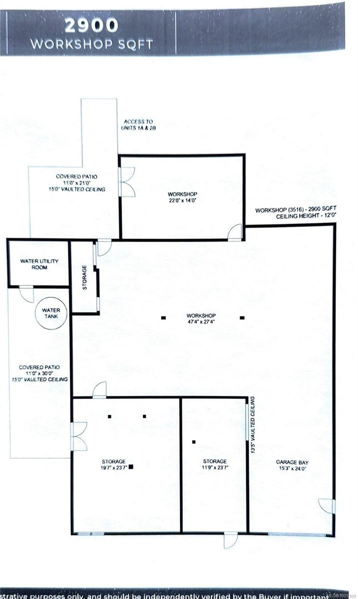
Total of 2,416 sq ft demised into 3 units of Unit 1 of 467 sq ft, Unit 2 of 282 sq ft, Unit 3 of 1,667 They can be leased together for $1,995. Zoning allows for Manufacturing and accessory retail sales. There is a 13 foot ceiling throughout and a 10 foot warehouse door on unit 3. Power is 100 Amp in each unit. Concrete floors and the space is heated and insulated with a 2 piece washroom. Separately metered, utilities are paid by the tenant, but there is no other additional rent. Easy access off the Alberni Hwy.

Property Summary

  • Neighbourhood: Parksville/Qualicum
  • Lot Frontage: 2416 Square Feet
  • Lot Size: 2416 Square Feet
  • Floor Space (approx): 2416 Square Feet

Property Features:

  • Parking Features:
    On Site
  • Property Sub Type:
    Industrial

Office Listing: 

Greg Sabo Sales Representative

Lifestyle
Neighbourhood Info
Devin Bhandar

Devin Bhandar

Real Estate Agent

Phone:  250.477.5353

Mobile:  778.676.7732

Fax:  250.477.3328

logo

Royal LePage Coast Capital Realty - Saanich, Brokerage (Independently owned and operated)

110 - 4460 CHATTERTON WAY
Victoria,  BC V8X5J2

Get More Info

Get More Info

Book a tour